Description
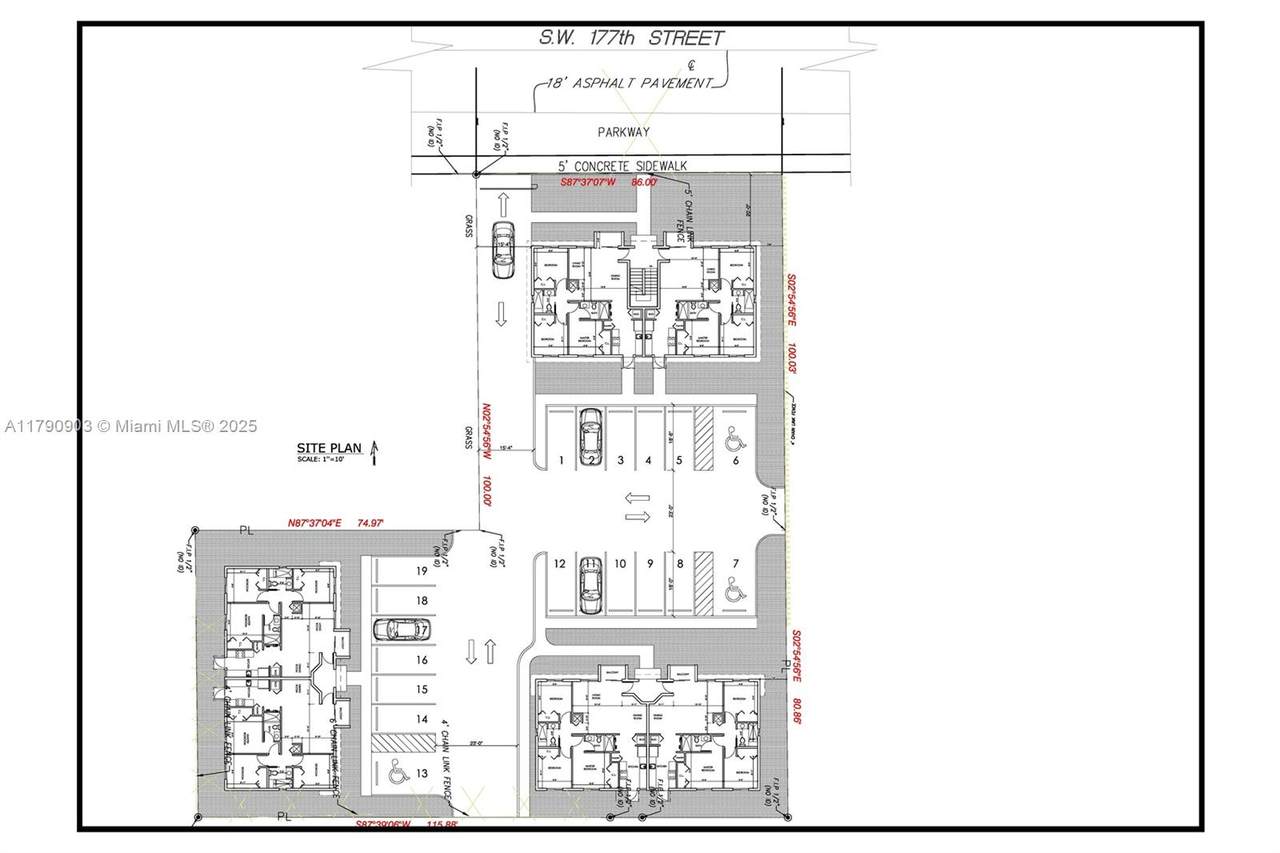
Nice Development Opportunity with Income-Producing Home! The house is sold along with the lot - 30-5032-000-0330 Don’t miss this rare chance to own a prime residential property being sold with an additional parcel (Folio #30-5032-000-0330), offering outstanding potential for new construction. Combined, the two parcels allow for development of up to 12 units—ideal for investors or developers looking to build in a high-demand area. The existing property features a well-maintained single-family home with 3 bedrooms and 2 bathrooms, perfect for generating rental income while you plan your new project or as a primary residence with long-term value. Located in a growing neighborhood with strong rental demand, this is an excellent opportunity to secure a property with built-in potential.
-
3BEDS
-
0.2ACRES
-
2BATHS
-
01/2 BATHS
-
1,025SQFT
-
$615$/SQFT
School Ratings & Info
Description
Nice Development Opportunity with Income-Producing Home! The house is sold along with the lot - 30-5032-000-0330 Don’t miss this rare chance to own a prime residential property being sold with an additional parcel (Folio #30-5032-000-0330), offering outstanding potential for new construction. Combined, the two parcels allow for development of up to 12 units—ideal for investors or developers looking to build in a high-demand area. The existing property features a well-maintained single-family home with 3 bedrooms and 2 bathrooms, perfect for generating rental income while you plan your new project or as a primary residence with long-term value. Located in a growing neighborhood with strong rental demand, this is an excellent opportunity to secure a property with built-in potential.
Related Properties
Copyright 2026, Participating Associations/MLS’s in the SEFMLS, MIAMI Association of REALTORS, Realtor Association of Greater Ft. Lauderdale, South Broward Board of Realtors. All rights reserved. The data relating to real estate for sale on this web site comes in part from the participating Associations/MLS’s in the Southeast Florida Regional Multiple Listing Service cooperative agreement, MIAMI Association of REALTORS, Realtor Association of Greater Ft. Lauderdale, South Broward Board of Realtors. The information being provided is for consumers' personal, non-commercial use and may not be used for any purpose other than to identify prospective properties consumers may be interested in purchasing. Information is deemed reliable but not guaranteed. Copyright 2026, Participating Associations/MLS’s in the SEFMLS, MIAMI Association of REALTORS, Realtor Association of Greater Ft. Lauderdale, South Broward Board of Realtors. All rights reserved. Use of search facilities of data on the site, other than a consumer looking to purchase real estate, is prohibited. Data last updated 2026-01-16T23:50:56.973.
