Description
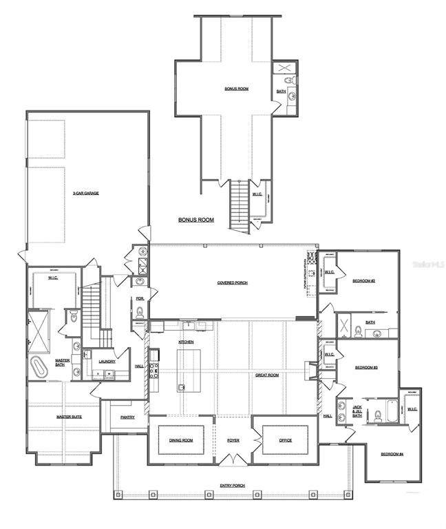
Under Construction. Home to be Completed Nov 30, 2026. Welcome to this Builder's masterpiece, sitting on 5 acres in High Springs. (Columbia County Taxes) This exquisite 3,680 Sq Ft custom built 4-bedroom, with office, separate formal dining, large bonus room & 4.5 bath home is perfectly designed for both relaxation and entertaining, offering a spacious living environment. The seller, the builder himself, poured his heart and expertise into crafting this architectural gem, boasting unmatched quality and exquisite finishes! As you enter, you'll be captivated by the expansive great room, complete with a gas fireplace that seamlessly opens to the grand kitchen. The kitchen is a chef's delight featuring an large walk in pantry, oversized kitchen island, quartz countertops, pot filler over the stove, upgraded backsplash, brand new state-of-the-art appliances, modern farmhouse with wood cabinets and high-end finishes that inspire culinary creativity! Additional dining options include a separate dining area as well as eating space at the island. Large windows flow seamlessly throughout the home allowing ample natural light complimenting the open floor plan and providing panoramic views of the beautifully 5 acre property. The great room is open to the kitchen and features custom built-ins and a gas fireplace, perfect for entertaining! The master suite is a luxurious retreat situated on one side of the home, boasting an exceptionally designed oversized walk-in closet! An absolute must-see! The en-suite bathroom features dual vanities, luxury tile up to the ceiling, high end fixtures, a modern farmhouse tub and spacious shower with custom shampoo niche and shave niche. The opposite side of the home has three additional oversized bedrooms, with walk-in closets and a spacious jack & jill guest bathroom with dual sinks, tub/shower combo. In addition to the 4 bedrooms down stairs, is an executive office featuring large windows overlooking the beautiful front yard. This home has an oversized bonus room with walk in closet and full bath upstairs. Practical features include an oversized inside laundry room with arrival center, wood cabinets, quartz countertops and plenty of storage, an oversized 3 car garage and an additional 1/2 bath for guest. The outdoor living area features an expansive covered lanai pre plumbed for future outdoor kitchen, perfect for entertaining! Sip your morning coffee overlooking the peaceful, sprawling acreage or host a barbeque with family and friends! This space is ready for you to create your dream backyard oasis or Equestrian haven! Located less than 5 minutes from City of High Springs, 30 minutes to Gainesville, 9 miles to Lake City/I-75, 11 miles Alachua & I-75, and just a hop, skip & jump to springs, boating, shopping and 8 miles from the Elementary, Middle & High School. Whether you're watching the breathtaking sunsets and views or observing the family of deer that frequent the property, This home and community promises a life of peaceful enjoyment. Don't miss your opportunity to live in High Springs but enjoy Columbia County Taxes.
-
4BEDS
-
5.01ACRES
-
4BATHS
-
11/2 BATHS
-
3,680SQFT
-
$299$/SQFT
School Information
Description
Under Construction. Home to be Completed Nov 30, 2026. Welcome to this Builder's masterpiece, sitting on 5 acres in High Springs. (Columbia County Taxes) This exquisite 3,680 Sq Ft custom built 4-bedroom, with office, separate formal dining, large bonus room & 4.5 bath home is perfectly designed for both relaxation and entertaining, offering a spacious living environment. The seller, the builder himself, poured his heart and expertise into crafting this architectural gem, boasting unmatched quality and exquisite finishes! As you enter, you'll be captivated by the expansive great room, complete with a gas fireplace that seamlessly opens to the grand kitchen. The kitchen is a chef's delight featuring an large walk in pantry, oversized kitchen island, quartz countertops, pot filler over the stove, upgraded backsplash, brand new state-of-the-art appliances, modern farmhouse with wood cabinets and high-end finishes that inspire culinary creativity! Additional dining options include a separate dining area as well as eating space at the island. Large windows flow seamlessly throughout the home allowing ample natural light complimenting the open floor plan and providing panoramic views of the beautifully 5 acre property. The great room is open to the kitchen and features custom built-ins and a gas fireplace, perfect for entertaining! The master suite is a luxurious retreat situated on one side of the home, boasting an exceptionally designed oversized walk-in closet! An absolute must-see! The en-suite bathroom features dual vanities, luxury tile up to the ceiling, high end fixtures, a modern farmhouse tub and spacious shower with custom shampoo niche and shave niche. The opposite side of the home has three additional oversized bedrooms, with walk-in closets and a spacious jack & jill guest bathroom with dual sinks, tub/shower combo. In addition to the 4 bedrooms down stairs, is an executive office featuring large windows overlooking the beautiful front yard. This home has an oversized bonus room with walk in closet and full bath upstairs. Practical features include an oversized inside laundry room with arrival center, wood cabinets, quartz countertops and plenty of storage, an oversized 3 car garage and an additional 1/2 bath for guest. The outdoor living area features an expansive covered lanai pre plumbed for future outdoor kitchen, perfect for entertaining! Sip your morning coffee overlooking the peaceful, sprawling acreage or host a barbeque with family and friends! This space is ready for you to create your dream backyard oasis or Equestrian haven! Located less than 5 minutes from City of High Springs, 30 minutes to Gainesville, 9 miles to Lake City/I-75, 11 miles Alachua & I-75, and just a hop, skip & jump to springs, boating, shopping and 8 miles from the Elementary, Middle & High School. Whether you're watching the breathtaking sunsets and views or observing the family of deer that frequent the property, This home and community promises a life of peaceful enjoyment. Don't miss your opportunity to live in High Springs but enjoy Columbia County Taxes.
© 2026 My Florida Regional MLS DBA Stellar MLS. All rights reserved. All listings displayed pursuant to IDX. All listing information is deemed reliable but not guaranteed and should be independently verified through personal inspection by appropriate professionals. Listings displayed on this website may be subject to prior sale or removal from sale; availability of any listing should always be independently verified. Listing information is provided for consumers personal, non-commercial use, solely to identify potential properties for potential purchase; all other use is strictly prohibited and may violate relevant federal and state law. Data last updated 2026-02-14T14:47:37.59.
