Description
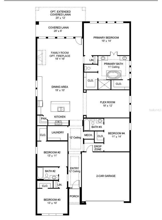
Under Construction. The front porch opens into a welcoming entryway with an extended tray ceiling that embraces the main hallway. Two secondary bedrooms with walk-in closets and full bathroom are off the main hall. A full guest suite with a private bathroom and ample closet space is adjacent. You pass the laundry room as you enter into the kitchen which features an island with built-in seating, 5-burner gas cooktop and corner pantry. A bonus flex room is across from the kitchen. The dining area flows from the kitchen to the connecting family room which offers abundance of natural light from its sliding glass door and access to the backyard covered lanai. The primary bedroom has a wall of windows overlooking the backyard. Double doors lead into the bathroom which hosts dual vanities, a freestanding tub, glass enclosed shower and two walk-in closets. The drop zone is off the two-car garage.
-
4BEDS
-
0.18ACRES
-
3BATHS
-
01/2 BATHS
-
2,517SQFT
-
$340$/SQFT
School Information
Description
Under Construction. The front porch opens into a welcoming entryway with an extended tray ceiling that embraces the main hallway. Two secondary bedrooms with walk-in closets and full bathroom are off the main hall. A full guest suite with a private bathroom and ample closet space is adjacent. You pass the laundry room as you enter into the kitchen which features an island with built-in seating, 5-burner gas cooktop and corner pantry. A bonus flex room is across from the kitchen. The dining area flows from the kitchen to the connecting family room which offers abundance of natural light from its sliding glass door and access to the backyard covered lanai. The primary bedroom has a wall of windows overlooking the backyard. Double doors lead into the bathroom which hosts dual vanities, a freestanding tub, glass enclosed shower and two walk-in closets. The drop zone is off the two-car garage.
© 2025 My Florida Regional MLS DBA Stellar MLS. All rights reserved. All listings displayed pursuant to IDX. All listing information is deemed reliable but not guaranteed and should be independently verified through personal inspection by appropriate professionals. Listings displayed on this website may be subject to prior sale or removal from sale; availability of any listing should always be independently verified. Listing information is provided for consumers personal, non-commercial use, solely to identify potential properties for potential purchase; all other use is strictly prohibited and may violate relevant federal and state law. Data last updated 2025-12-15T06:45:57.91.
